Контакти
Телефон:
+38 03249 3-23-46
Електронна пошта:
info@sheptytska-rada.gov.ua
Львівської області
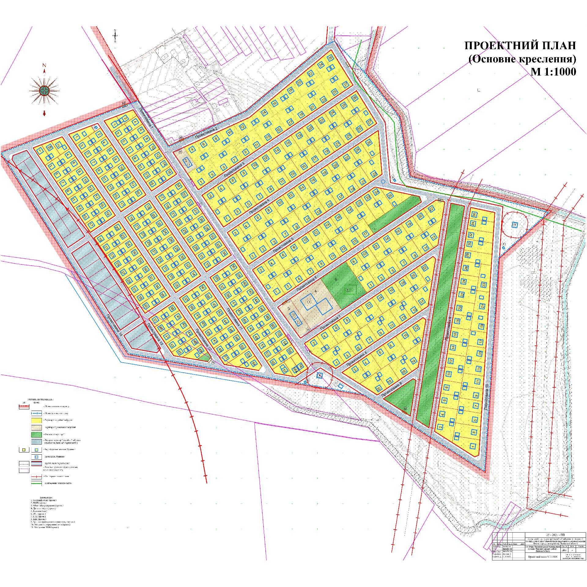
Детальний план території садибної забудови в південній частині села Рудка Червоноградської територіальної громади Червоноградського району Львівської області , затверджений рішенням Червоноградської міської ради від 21.12.2023 № 2222
| Приєднані файли: |
| Д про громад.pdf |
| Довідка з дотатками.pdf |
| Моніторинг +.pdf |
| Ріш 2222 затвердж.pdf |
| ДПТ Рудка_ПЗ.pdf |