Контакти
Телефон:
+38 03249 3-23-46
Електронна пошта:
info@sheptytska-rada.gov.ua
Львівської області
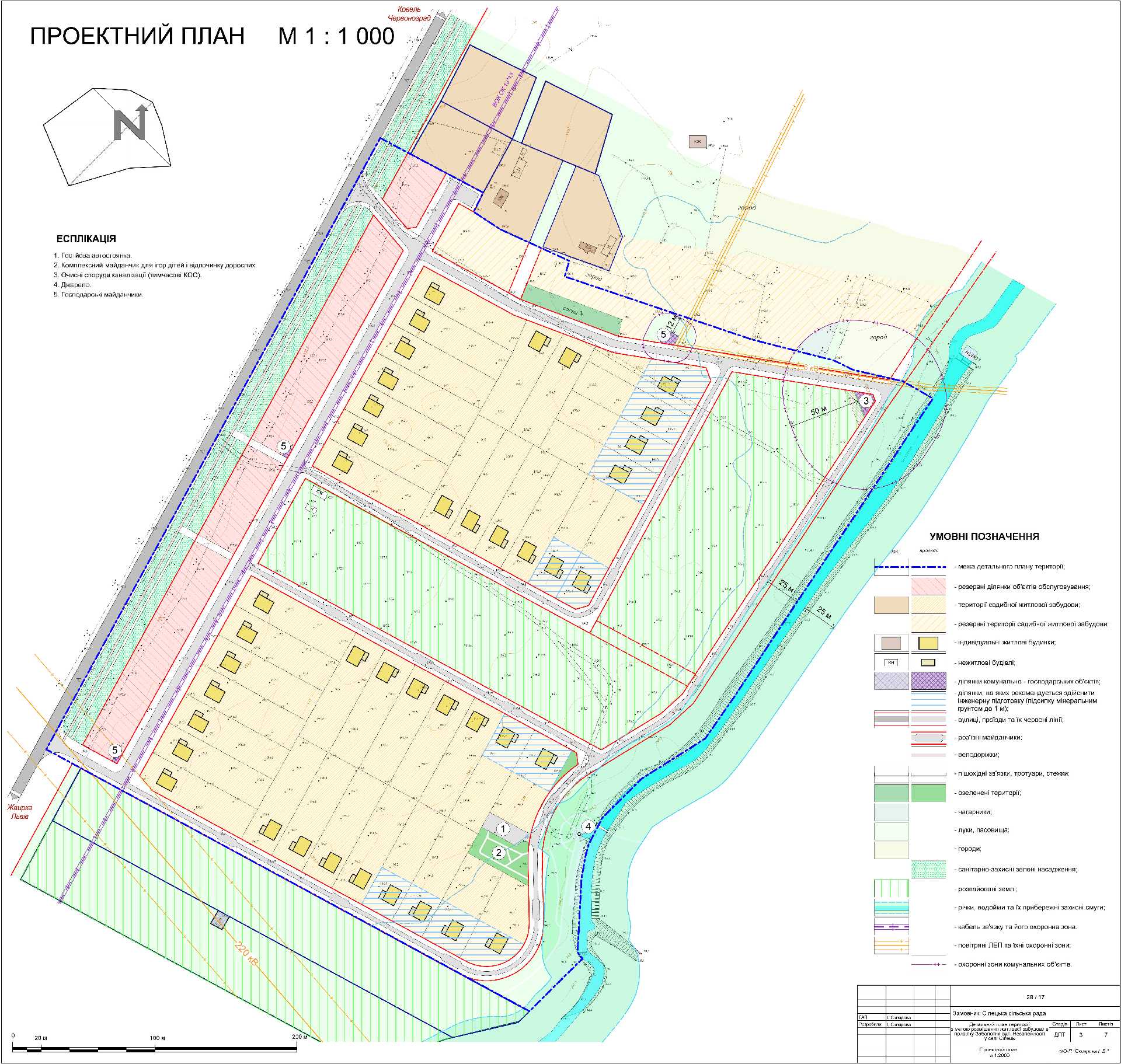
ДЕТАЛЬНИЙ ПЛАН ТЕРИТОРІЇ з метою розміщення житлової забудови в присілку Заболотня вул. Незалежності у селі Сілець
| Приєднані файли: |
| ДПТ СІЛЕЦЬ_квартал_Заболотня_ПЗ.doc |