Контакти
Телефон:
+38 03249 3-23-46
Електронна пошта:
info@sheptytska-rada.gov.ua
Львівської області
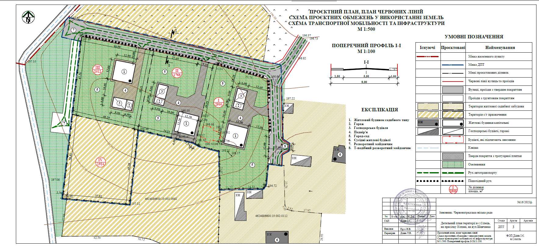
"Детальний план території на вул. Шевченка на присілку Копані в селі Сілець Червоноградської міської територіальної громади Червоноградського району Львівської області" затверджено рішенням Шептицької міської ради від 12.12.2024 № 3193
| Приєднані файли: |
| 3193 Затв Шевченка Копані.jpeg |
| Довідка про консультації проєкту Копані.pdf |
| Моніторінг.pdf |
| Дов про гром копані.pdf |
| Пояснювал_на_Сiлец__Гавалко.pdf |