Контакти
Телефон:
+38 03249 3-23-46
Електронна пошта:
info@sheptytska-rada.gov.ua
Львівської області
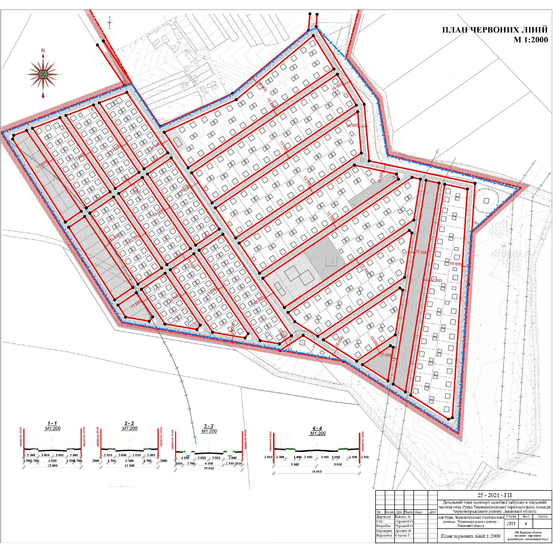
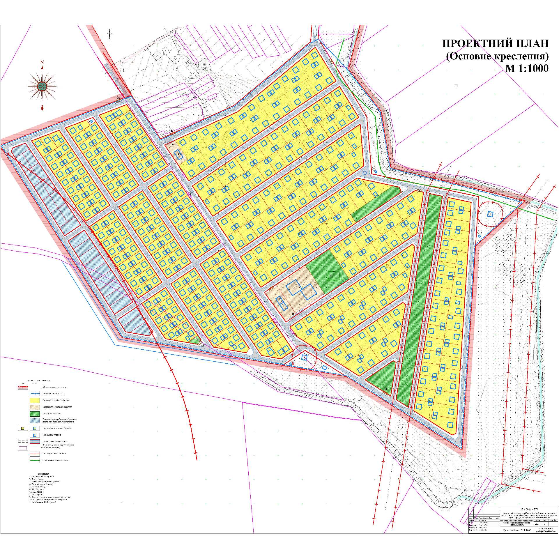
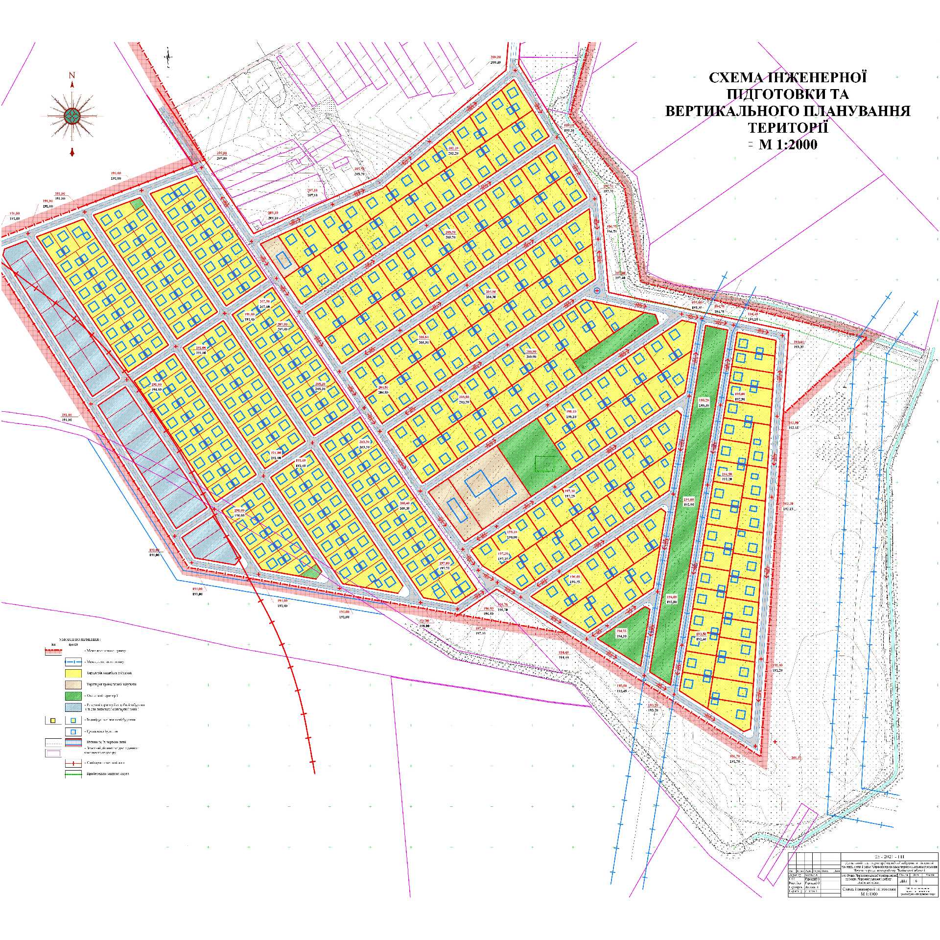
Детальний план території садибної забудови в південній частині села Рудка Червоноградської територіальної громади Червоноградського району Львівської області розроблений згідно рішення Червоноградської міської ради від 01.04.2021 № 311
| Приєднані файли: |
| Протокол Рудки ДПТ.pdf |
| ДПТ Рудка_ПЗ.pdf |